2439 SW Ridgeway DriveOak Harbor, WA 98277
Listing courtesy of Rick Chapman of Coldwell Banker 360 Team




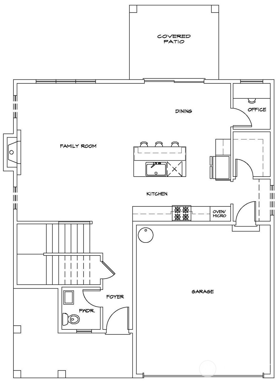
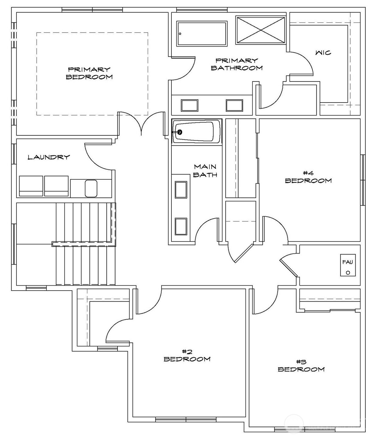
Welcome to Ridgeway Heights! The Marietta, Lot 11, offers a spacious 2,123 square-foot plan with 4 bedrooms & 2.5 bathrooms. The main floor features an open kitchen, dining, family room with fireplace & pocket office. Enjoy a covered patio, full landscaping & fully fenced backyard. The second floor features bedrooms, laundry & spacious primary bedroom w/ensuite bathroom & walk-in closet. Quality finishes include white cabinetry, stainless steel appliances, quartz counters, heat pump (providing A/C), garage door opener with remote and more! This floorplan lives large! Site Registration Policy – Buyers must register Broker on first visit & Broker to attend future visits.
| 4 days ago | Listing updated with changes from the MLS® | |
| 5 days ago | Listing first seen on site |
Listing courtesy of Rick Chapman of Coldwell Banker 360 Team
Listing information is provided by Participants of the Northwest MLS. IDX information is provided exclusively for personal, non-commercial use, and may not be used for any purpose other than to identify prospective properties consumers may be interested in purchasing. Information is deemed reliable but not guaranteed. Copyright 2026, Northwest MLS.
All data is obtained from various sources and may not have been verified by the broker or MLS Grid. Supplied open house information is subject to change without notice. All information should be independently reviewed and verified for accuracy. Properties may or may not be listed by the office/agent presenting the information.
Last checked: 2026-01-26 11:41 AM PST

Did you know? You can invite friends and family to your search. They can join your search, rate and discuss listings with you.